1345346
назад

наб. Октябрьская № 5346

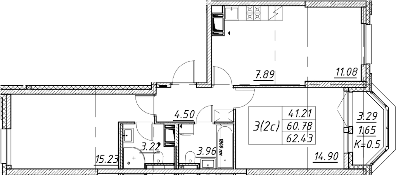
Двухкомнатная квартира на 10-ом этаже 62,43 кв.м

«Цивилизация на Неве» Будет сдан в IV квартале 2027 года
  • 263 300 за кв. м и выше
  • 1 020 квартир в продаже
  • 18 этажей
  • 20 минут до метро
Невский район Улица Дыбенко
  • Этаж10 / 18
  • Количество комнат2
  • Площадь62,43 м2
  • Площадь кухни18,97 м2
  • Высота потолка2,97 м
  • БалконНет
  • ОтделкаПодготовка

Воспользуйтесь поиском квартир в Цивилизация на Неве

Выше представлены не все варианты квартир, а только часть популярных планировок. Введите данные и получите под ваш запрос планировки, цены, виды из окон и полную информацию по всем подходящим вариантам. 1/5
Выберите количество спален
Какая площадь квартиры интересует?
30 120
Планируемый бюджет
Куда отправить варианты?
Необходимо выбрать хотя бы один вариант
Если выбран вариант отправки на E-mail, укажите адрес
Номер телефона

Ваше сообщение успешно отправлено!

Почему вам выгодно покупать с нами

  • Главное в нашей работе это ваши потребности счастливой жизни, которые мы подробно изучаем и, из абсолютно всех возможных вариантов в городе, подбираем идеальное место, в котором хочется жить

  • Нам нечего скрывать - все застройщики для нас равны, поэтому мы честно раскрываем все плюсы и минусы каждого объекта. Не навязываем конкретные ЖК и квартиры, рассказываем про все перспективы и вероятные неудобства в будущем

  • Экономим ваше личное время - все квартиры, находящиеся сегодня в продаже от надежных застройщиков есть в нашей базе, вы получаете полную и актуальную информацию по ним в одном месте, а не тратите время на общение с десятками менеджеров, которые хотят продать именно свой ЖК

  • Действуют все актуальные акции и скидки застройщиков. Можете быть уверены, что вам предоставлена минимально возможная цена на квартиру

  • Вы ничего не платите. Все услуги бесплатны. Зарплату нам платит застройщик, у которого вы в итоге покупаете квартиру, точно так же, как и менеджерам своего отдела продаж

  • Получаете индивидуальные условия по ипотеке. Наш ипотечный отдел подберет самые комфортные условия и подаст заявку в банки с лучшими ставками.

  • Наши эксперты проверят все документы и договор от застройщика до подписания. Дадут пошаговую инструкцию по подготовке к сделке и сопроводят вас на подписании договора с застройщиком, отвечая на все вопросы и выступая на вашей стороне

  • - Ваш персональный эксперт на связи 24/7 любым удобным способом - от звонка до сообщений в соц. сетях или встречах по скайпу.

В поисках квартиры?
Мы поможем, это бесплатно!

Ваше сообщение успешно отправлено!