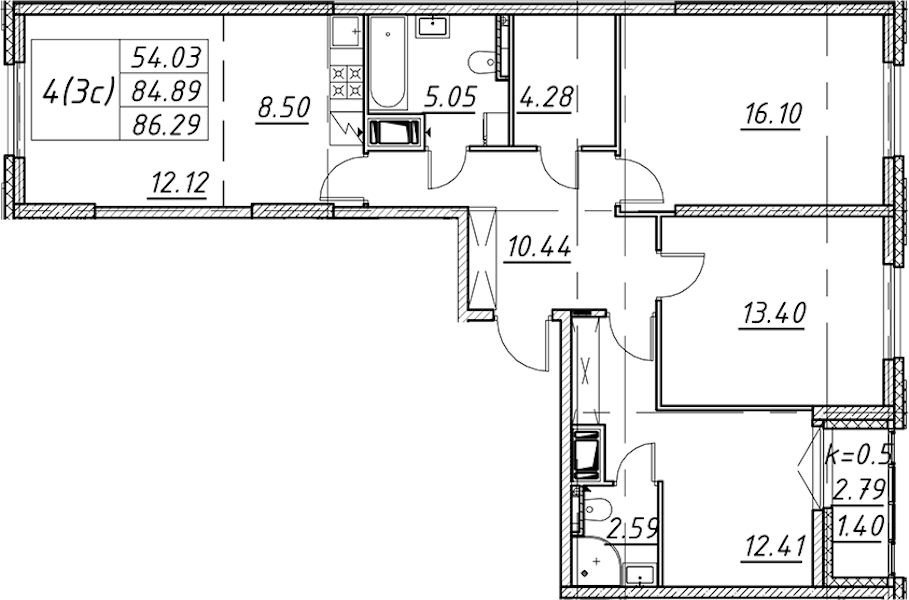
- Этаж13 / 14
- Количество комнат3
- Площадь86,29 м2
- Площадь кухни20,62 м2
- Высота потолка2,82 м
- СанузелРаздельный
- БалконЕсть
- ОтделкаПодготовка
Пример расчёта ипотеки носит исключительно информационный характер.
Почему вам выгодно покупать с нами
-
Главное в нашей работе это ваши потребности счастливой жизни, которые мы подробно изучаем и, из абсолютно всех возможных вариантов в городе, подбираем идеальное место, в котором хочется жить
-
Нам нечего скрывать - все застройщики для нас равны, поэтому мы честно раскрываем все плюсы и минусы каждого объекта. Не навязываем конкретные ЖК и квартиры, рассказываем про все перспективы и вероятные неудобства в будущем
-
Экономим ваше личное время - все квартиры, находящиеся сегодня в продаже от надежных застройщиков есть в нашей базе, вы получаете полную и актуальную информацию по ним в одном месте, а не тратите время на общение с десятками менеджеров, которые хотят продать именно свой ЖК
-
-
Действуют все актуальные акции и скидки застройщиков. Можете быть уверены, что вам предоставлена минимально возможная цена на квартиру
-
Вы ничего не платите. Все услуги бесплатны. Зарплату нам платит застройщик, у которого вы в итоге покупаете квартиру, точно так же, как и менеджерам своего отдела продаж
-
Получаете индивидуальные условия по ипотеке. Наш ипотечный отдел подберет самые комфортные условия и подаст заявку в банки с лучшими ставками.
-
Наши эксперты проверят все документы и договор от застройщика до подписания. Дадут пошаговую инструкцию по подготовке к сделке и сопроводят вас на подписании договора с застройщиком, отвечая на все вопросы и выступая на вашей стороне
-
- Ваш персональный эксперт на связи 24/7 любым удобным способом - от звонка до сообщений в соц. сетях или встречах по скайпу.



